■ GDQ型-气动高真空挡板阀
■ GDQ型气动高真空挡板阀是通过电磁换向阀改变气路方向,控制执行气缸驱动阀门作启闭运动。用于接通或切断真空管路中的气流。适用介质为纯净空气和非腐蚀性气体。
带反馈信号装置。
■ GDQ
Pneumatic High Vacuum Flapper Valve
■ GDQ pneumatic high vacuum flapper valve uses solenoid directional valve to change the direction of air passage, and controls the actuating cylinder to drive the valve opened and closed. It is used to put through or cut off the airflow in vacuum pipeline. Applicable medium can be pure air and noncorrosive gases.
With signal feedback device.
■ 主要技术性能
Main Technical Performance
| 适用范围:Applicability |
105~1.3×10-4Pa(轴封为橡胶)
105~1.3×10-5Pa(轴封为波纹管) |
| 阀门漏率:Valve Leak Rate |
≤1.3×10-4Pa.L/S.(轴封为橡胶)
≤1.3×10-5Pa.L/S.(轴封为波纹管) |
| 适用温度:Applicable Temperature |
-25~+80℃(丁腈橡胶)
-30~+150℃(氟橡胶) |
| 气源压力:Annoy pressure |
0.4~0.6MPa |
■ 主要零件材料
Materials of Main Parts
■ 阀体、阀盖、阀杆:铝合金、碳钢或不锈钢
密封件:丁腈橡胶、氟橡胶、波纹管(轴封)。
Body, bonnet and stem: aluminium alloy, carbon steel or stainless steel
Sealing element: NBR, Viton, bellows(shaft seal)
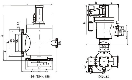
CONSTRUCTION FIGHTS(mm)
■ 外形及连接尺寸(mm)
Overall and Connection Dimensions(mm)

快卸法兰连接
|
Model
型号
|
DN
|
D1
|
D
|
A
|
H
|
B
|
W
|
法兰标准
|
|
GDQ-J10(b)
|
10
|
12.2
|
30
|
30
|
120
|
52
|
40
|
GB4982
|
|
GDQ-J16(b)
|
16
|
17.2
|
30
|
40
|
140
|
58
|
40
|
|
GDQ-J25(b)
|
25
|
26.2
|
40
|
50
|
150
|
58
|
40
|
|
GDQ-J32(b)
|
32
|
34.2
|
55
|
58
|
158
|
58
|
40
|
|
GDQ-J40(b)
|
40
|
41.2
|
55
|
65
|
183
|
75
|
50
|
|
GDQ-J50(b)
|
50
|
52.2
|
75
|
70
|
190
|
75
|
50
|
活套法兰连接
|
Model
型号
|
DN
|
D
|
Do
|
D2
|
A
|
P
|
H
|
n-φc
|
DNy预抽口
|
法兰标准
|
|
GDQ-J50
|
50
|
110
|
90
|
55
|
70
|
95
|
278
|
4-φ9
|
|
GB6070
|
|
GDQ-J63
|
63
|
130
|
110
|
68
|
88
|
108
|
360
|
4-φ9
|
|
|
GDQ-J80
|
80
|
145
|
125
|
85
|
98
|
133
|
379
|
8-φ9
|
|
|
GDQ-J100
|
100
|
165
|
145
|
105
|
108
|
159
|
394
|
8-φ9
|
|
|
GDQ-J(S)160
|
160
|
225
|
200
|
165
|
158
|
240
|
555
|
8-φ11
|
DN40 GB4982
|
|
GDQ-J(S)200
|
200
|
285
|
260
|
208
|
200
|
280
|
623
|
12-φ11
|
DN50 GB6070
|
|
GDQ-J(S)250
|
250
|
335
|
310
|
258
|
208
|
350
|
663
|
12-φ11
|
DN63 GB6070
|
|
GDQ-J(S)320
|
320
|
425
|
395
|
328
|
250
|
425
|
832
|
12-φ14
|
DN80 GB6070
|
|
GDQ-J(S)400
|
400
|
510
|
480
|
410
|
330
|
530
|
1120
|
16-φ14
|
DN100 GB6070
|
|
GDQ-J(S)500
|
500
|
610
|
580
|
510
|
360
|
630
|
1036
|
16-φ14
|
DN125 GB6070
|
|
GDQ-J(S)630
|
630
|
750
|
720
|
642
|
450
|
750
|
1415
|
20-φ14
|
DN160 GB6070
|
|
GDQ-J(S)800
|
800
|
920
|
880
|
815
|
530
|
920
|
1850
|
24-φ14
|
DN200 GB6070
|
|
GDQ-J(S)150
|
150
|
220
|
195
|
156
|
158
|
160
|
555
|
8-φ12
|
DN40 GB4982
|
JB919
|
|
GDQ-J(S)300
|
300
|
380
|
350
|
308
|
250
|
250
|
832
|
8-φ14
|
DN80 GB6070
|
|
GDQ-J(S)600
|
600
|
710
|
670
|
610
|
450
|
750
|
1415
|
12-φ21
|
DN150 GB919
|
|